reforma e ampliação de residência unifamiliar
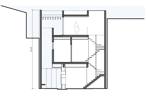
com o desafio de abrigar uma família de cinco pessoas, este projeto consistiu na reforma e ampliação de uma casa de 140m² construída em um condomínio de residências unifamiliares no jardim botânico, rio de janeiro. o lote estreito, profundo e com pouca superfície de contato com o exterior levou à criação de dois pátios internos: um central, para onde abre-se a sala, e um de fundos, que integra um jardim à área de serviço e para onde voltam-se alguns quartos e os escritórios. a escada original é modificada e prolonga-se ao novo pavimento de cobertura, criado para ser um espaço de trabalho e um terraço que tiram partido das vistas e da vegetação local. uma clarabóia ilumina a escada, projetada para trazer luz indireta ao interior e promover a integração entre os pavimentos. as esquadrias propostas para os quartos frontais controlam a entrada de luz e definem a imagem da casa para o exterior.
projeto de arquitetura pedro varella
fase executado
início do projeto 2010
fim da construção 2012
endereço rua pacheco leão 646,
jardim botânico, rio de janeiro
área construída 300m²
apoio técnico campo aud
colaboradores juliana sicuro, alice tepedino, caio calafate, joão calafate e paula daemon
execução da obra pedro varella
mestre de obras edmilson tonassi
engenheiro calculista armando mendes neto
engenheiro de instalações evandro bastos
fotografia feines bild (antonia cattan & christopher baasner)



















