instituto vital brazil
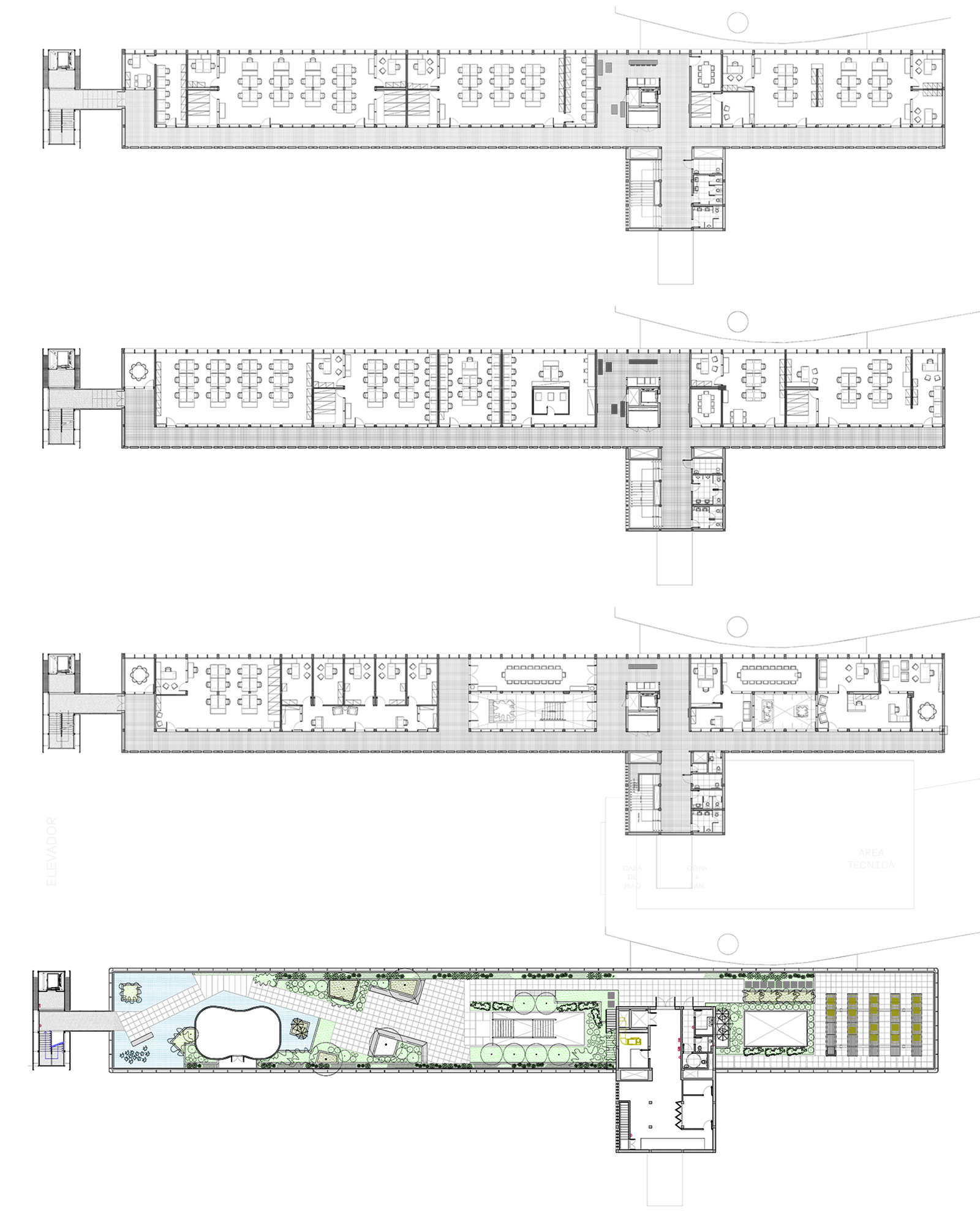
neste projeto para a readequação do edifício sede do instituto vital brazil, em niterói, construído na década de 1930, contemplamos a reestruturação completa da sua parte interna, criamos um terraço-jardim, pilotis, nova circulação vertical de emergência e a modernização de edifício anexo. há três ações centrais na intervenção. a primeira é a demolição parcial de um edifício anexo, construído para abrigar uma farmácia popular, descolando-o da edificação principal. a segunda é necessidade de construção de novo sistema de escape de incêndio para a edificação principal, a saber, escada e elevador de emergência. a terceira é a redefinição do estacionamento localizado à ala sul da edificação e a consequente demolição de elementos que se encontram anexados a mesma, tal como a subestação elétrica.
projeto de arquitetura
joão calafate, caio calafate, pedro varella, juan teixeira e sergio garcia-gasco
fase orçamento-licitação
início do projeto 2012
fim do projeto 2014
endereço rua maestro josé botelho 64,
vital brazil, niterói, rio de janeiro
área construída 5000m²
coordenação de projetos claudio dias
estagiária de arquitetura patricia rodrigues
cálculo estrutural geraldo filizola e rodrigo affonso
instalações prediais cemope
ar condicionado sei brasil
paisagismo térreo burle marx
paisagismo cobertura eduardo barra
programação visual miguel nóbrega e quinta-feira
sustentabilidade casa do futuro
consultoria acústica lygia niemeyer
iluminação studio iluz







