projeto para unidade mínima de habitação
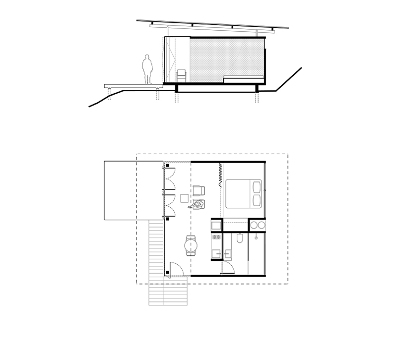
o “abrigo alto” faz parte de um conjunto de 3 edificações projetadas pelo grua para um sítio no vale das videiras, região serrana do rio de janeiro: “pavilhão” (primeiro a ser construído, em 2016), “abrigo alto” a “abrigo baixo” projetados em 2019 e finalizados em 2022. cada um, com 30m2 de área interna, tem espaço reservado para dormir - fechado por uma leve cortina -, uma sala ligada a um deck frontal, uma pequena copa e um banheiro completo.
os abrigos do vale seguem o mesmo sistema construtivo e módulos espaciais: vãos de 3m e 5m com apoios que variam de pilares em madeira a muros de alvenaria cerâmica. o vigamento de madeira maciça sustenta a cobertura em painéis de telha trapezoidal termo acústica, que se debruçam formando beirais de até 1,80m. nos ambientes mais controlados (quarto e banheiros) uma fina laje em concreto armado funciona como forro, criando uma dupla camada de isolamento em relação ao exterior.
no trecho que se debruça sobre a vista do vale, o “abrigo alto” tem como fechamento um pano de vidro em toda sua extensão, que, somado ao fechamento superior, conforma uma caixa translúcida.
endereço vale das videiras, araras, rio de janeiro
fase executado
início do projeto 2019
fim da construção 2021
área de intervenção 50m²
projeto de arquitetura pedro varella, caio calafate, andré cavendish,
ingrid colares e antonio machado
cálculo estrutural rodrigo affonso
projeto de iluminação maneco quinderé
construção alex e aleandro souza da silva
fotografias rafael salim
fotografias de obra gru.a







