projeto de expografia para mostra no MAR
A exposição "FUNK: Um grito de ousadia e liberdade" reúne centenas de obras de artistas de diferentes gerações e territórios, apresentando um panorama sobre os antecedentes, o nascimento e a explosão da cultura do FUNK do Rio de Janeiro para o mundo.
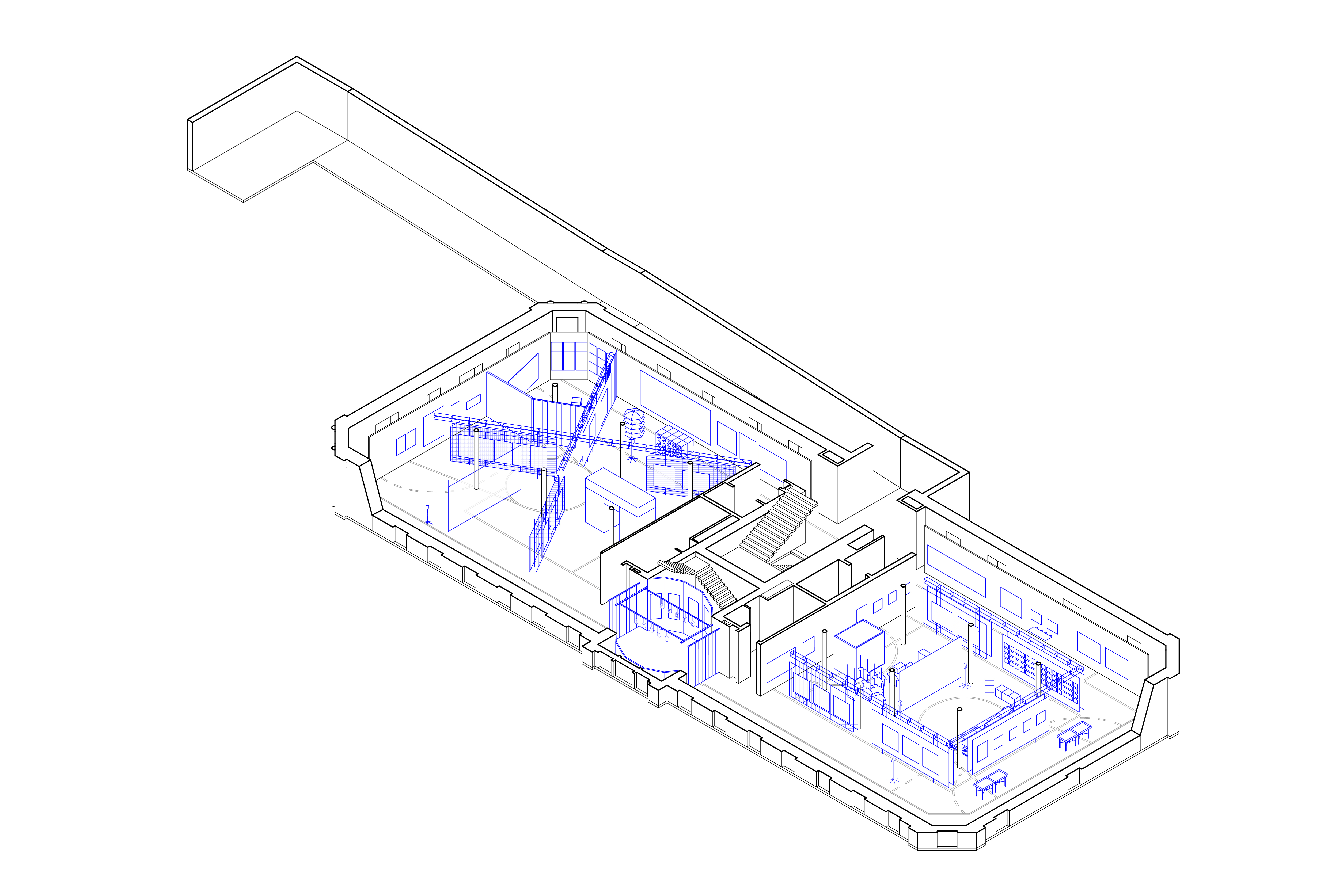
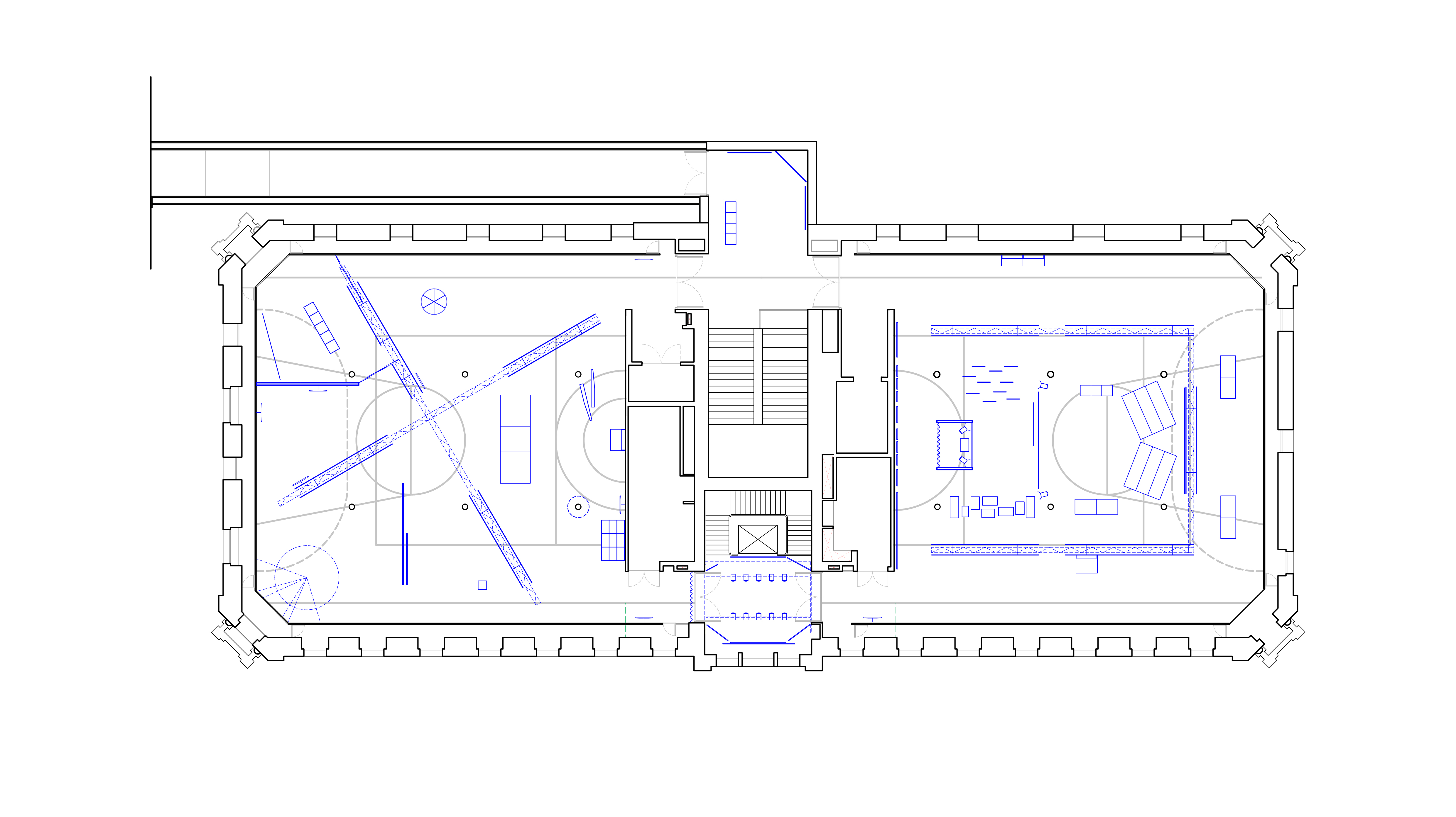
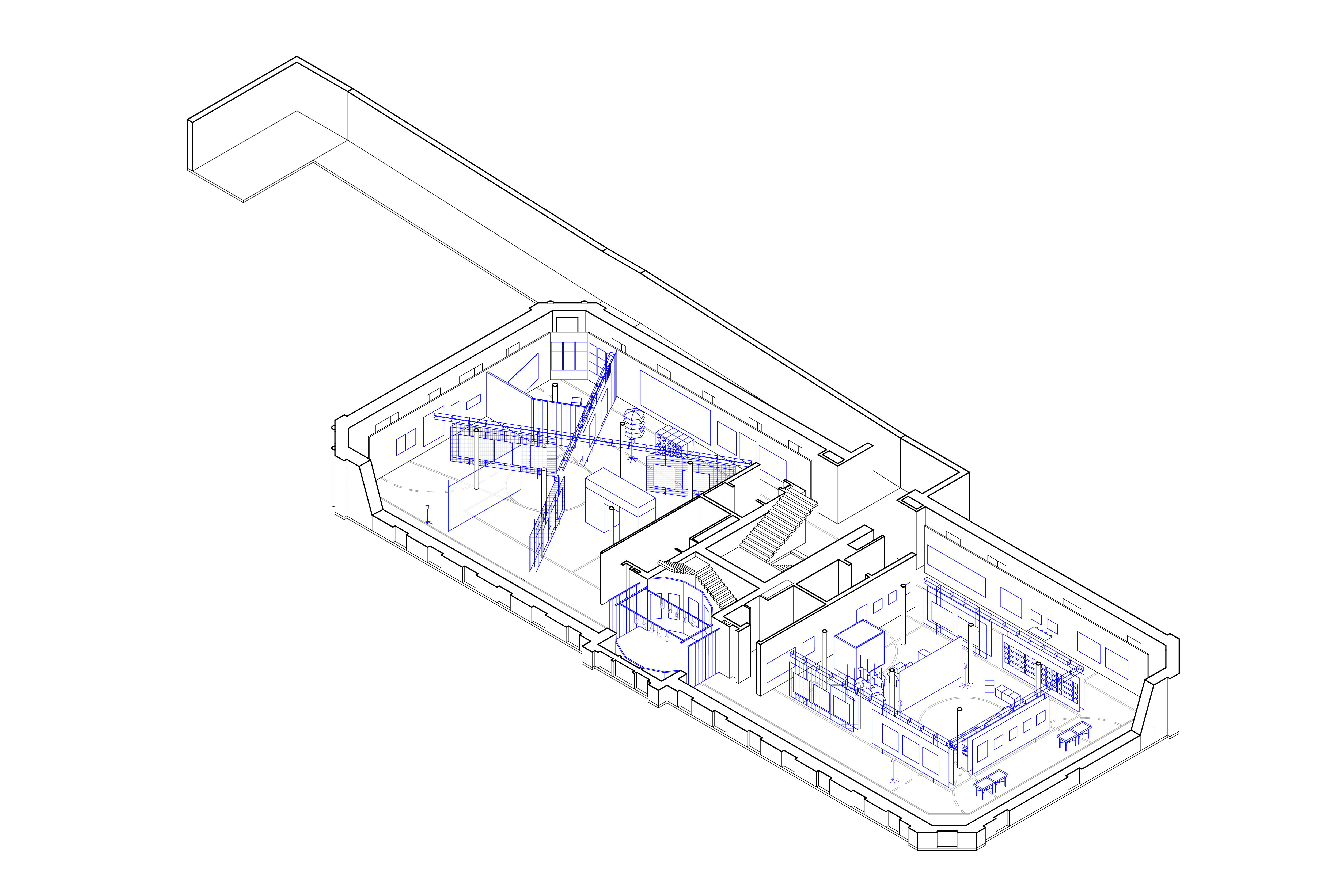
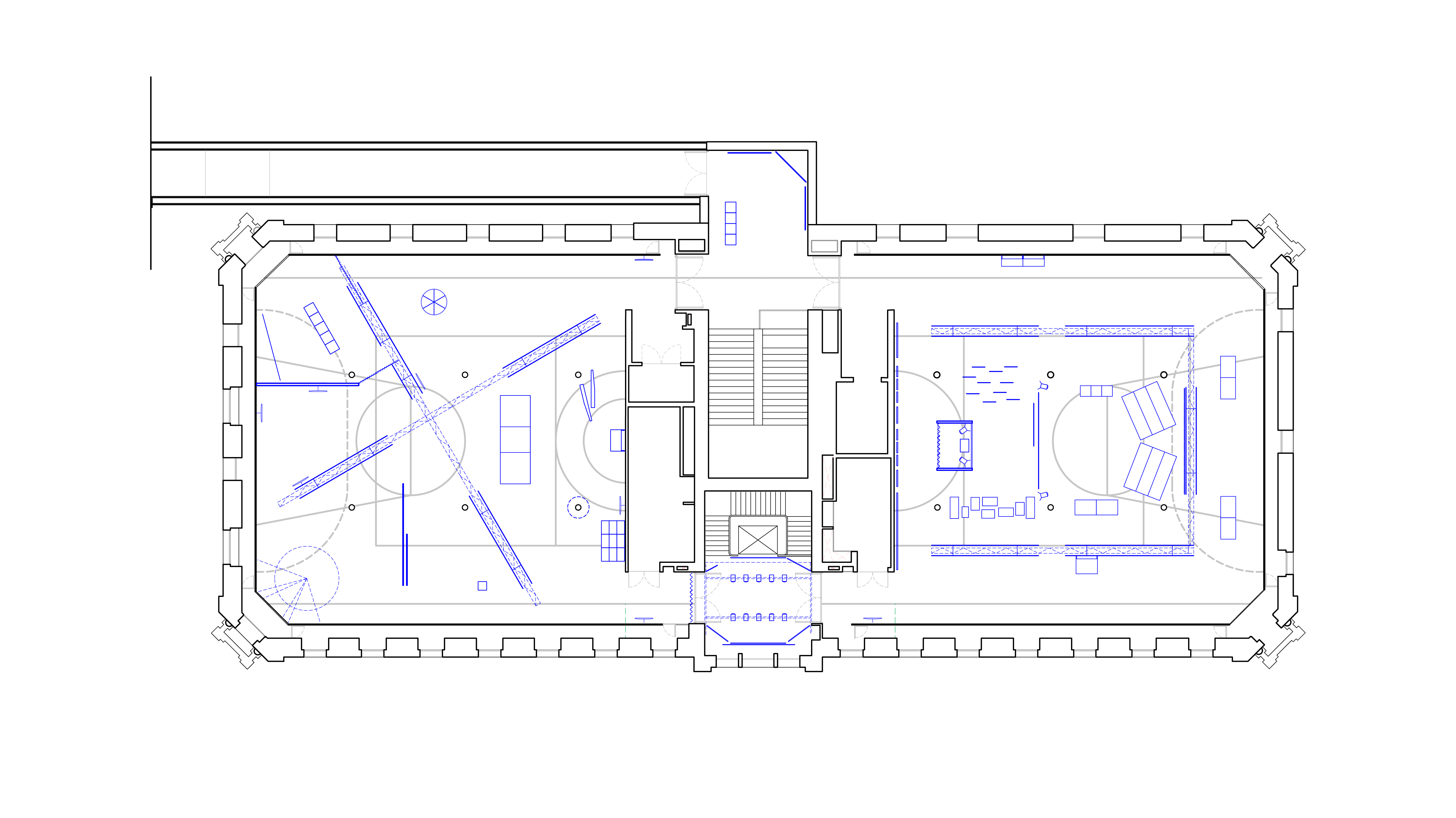
O projeto expografico propõe a criação de um piso de quadra poliesportiva sobre o assoalho do museu, evocando a presença dos bailes que aconteceram e seguem acontecendo em espaços dessa natureza. No denso territorio da metrópole é nessas quadras que se faz a festa. As estruturas dos painéis que suportam as obras bidimensionais foram desenhadas em treliças e tramas metálicas, apoiadas em vigas espaciais modulares - as mesmas usadas nos palcos e coberturas de baile.
curadoria amanda bonan, marcelo campos, don filó, marcelo campos, taísa machado.
assistentes de curadoria amanda rezende, jean carlos azuos , gabriel moreno, thayná trindade, thiago fernandes, waleska oliveira
expografia grua (pedro varella, caio calafate, bárbara amorim, ingrid colares, igor machado)
design gráfico ívanno josé brabo
luz diana joels e luana alves
cenotecnia fr cenografia
producao felipe maia, luna patacho, márcia rego, priscila manfredini, renato alexandre, renato vieira, saturno douglas,
stella paiva
fotografias rafael salim
















