projeto para restaurante, bar e clube noturno
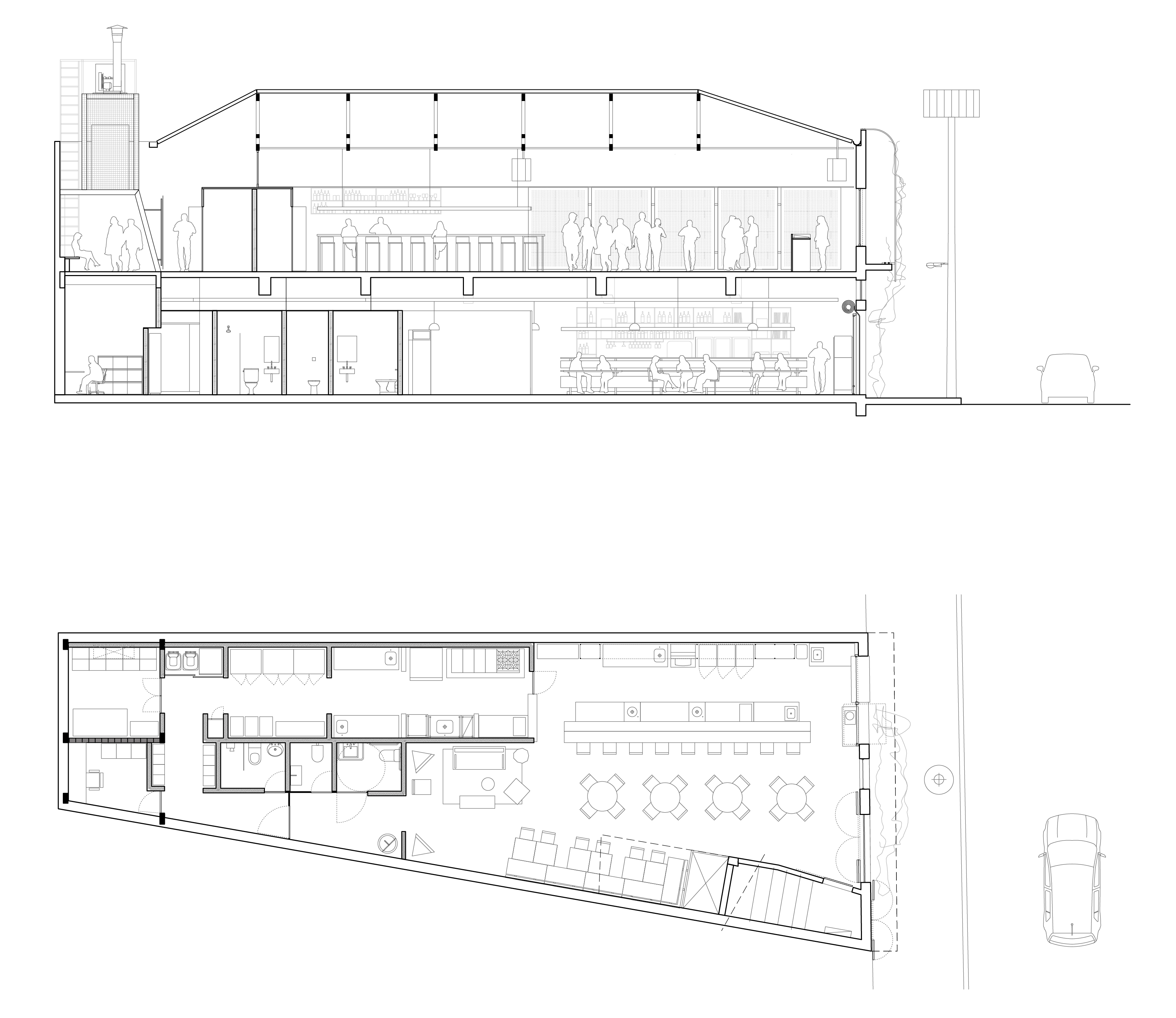
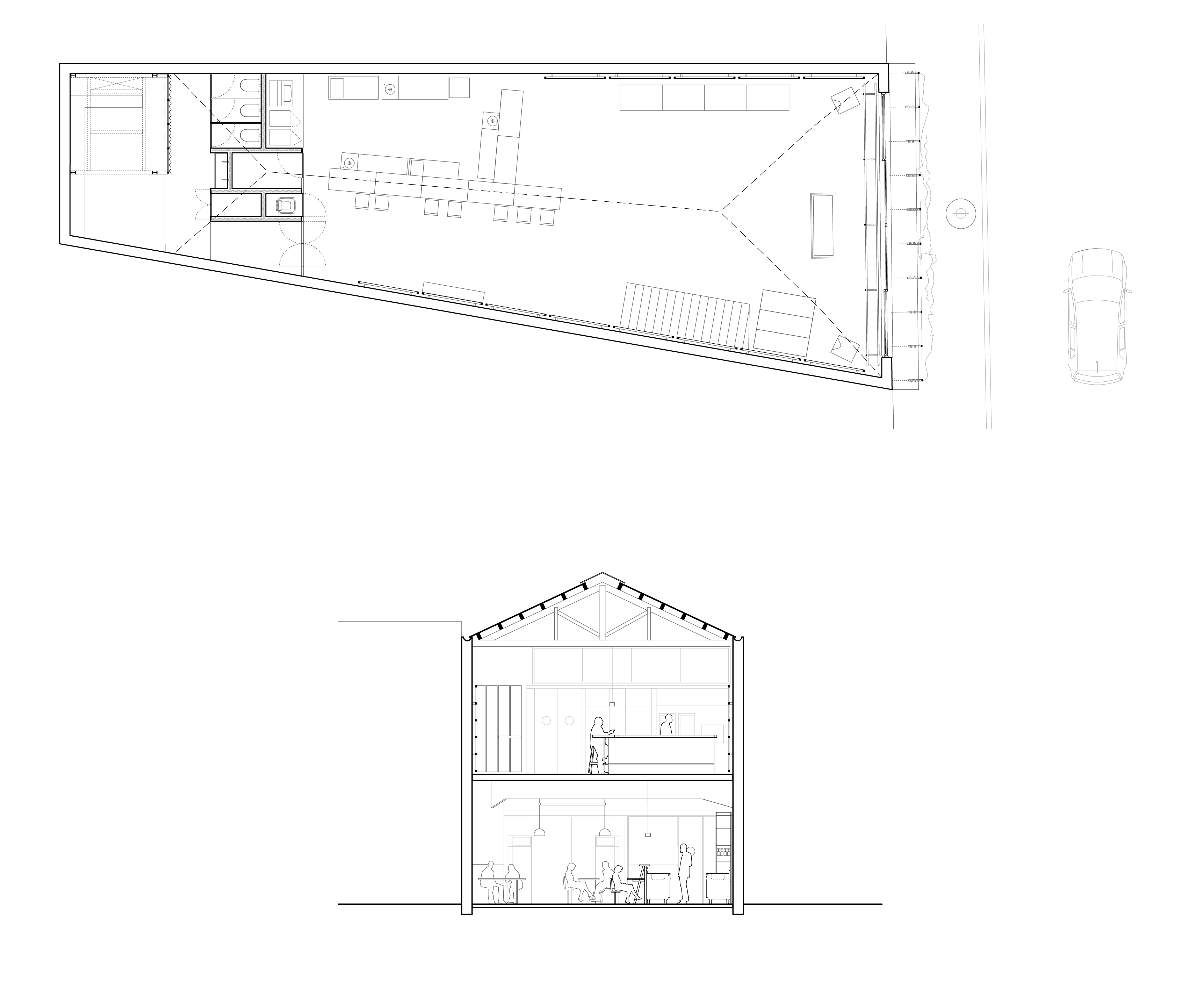
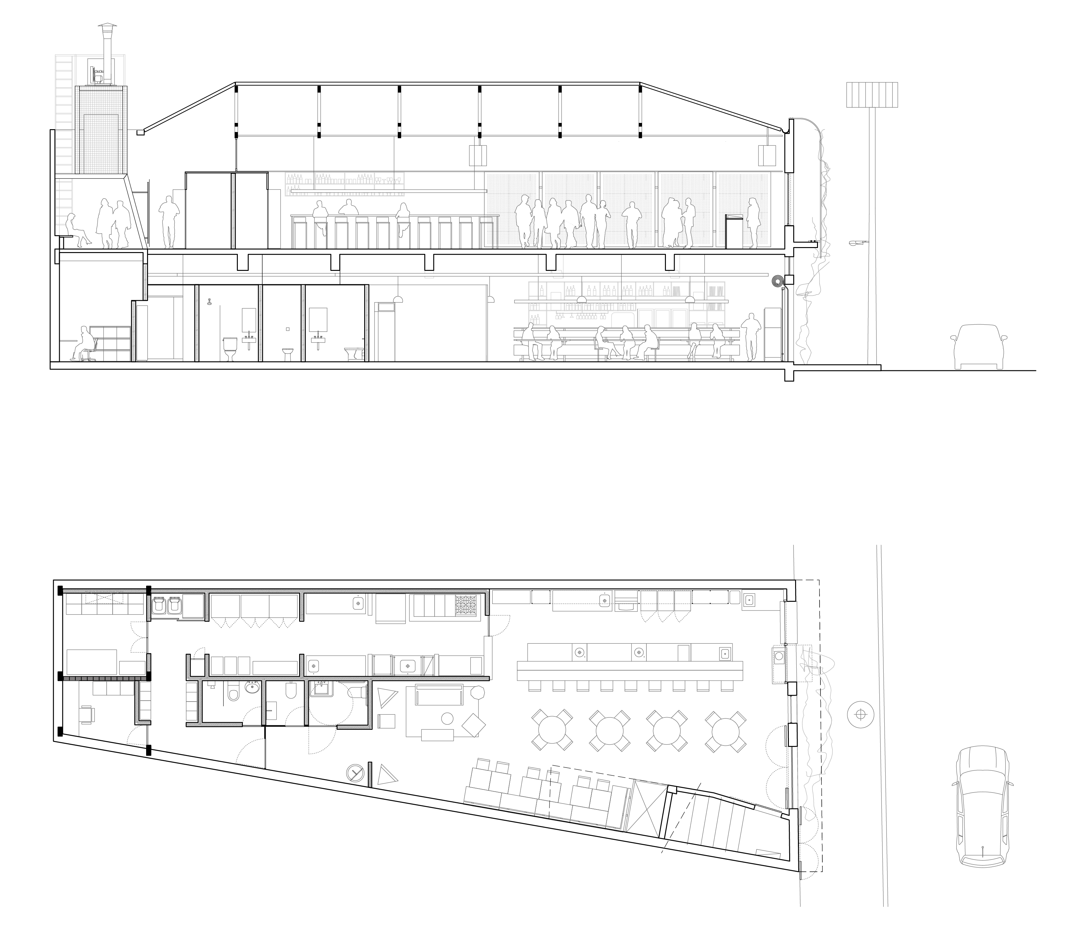
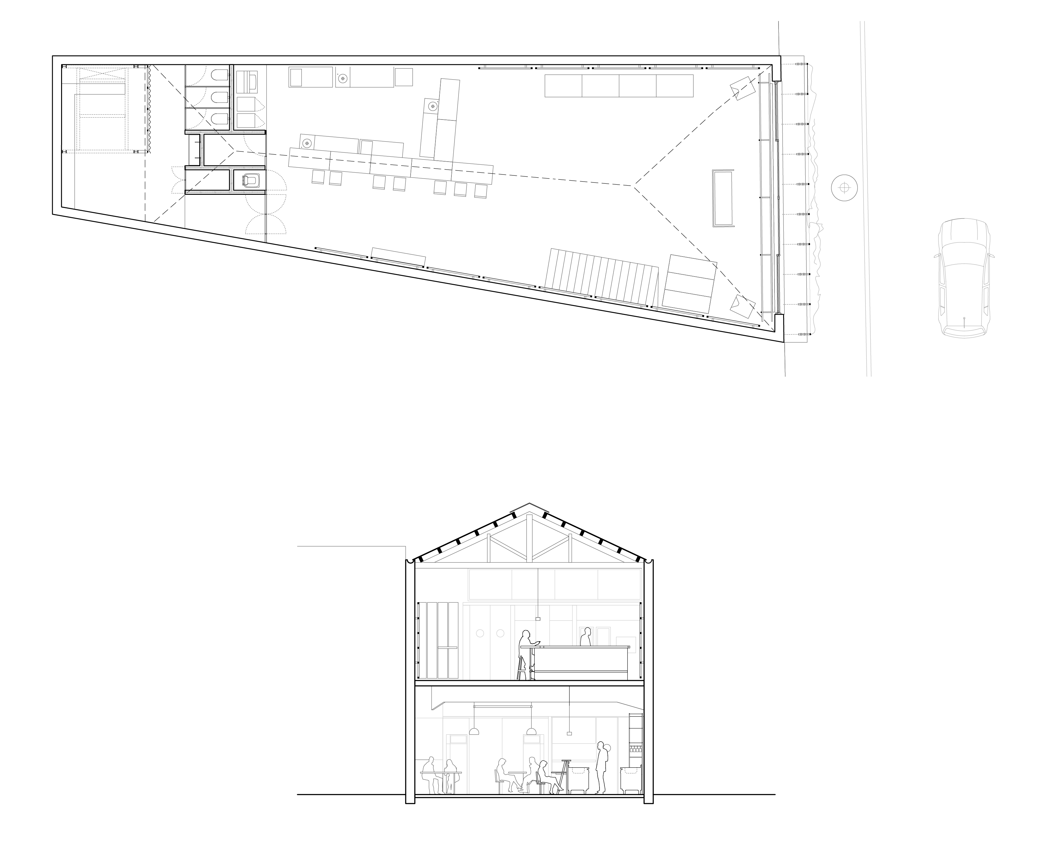
neste segundo projeto para o bar caracol projetamos duas atmosferas distintas, mas no entanto complementares: no térreo desenhamos um espaço luminoso, com relação direta com rua, abrigando um restaurante e um grande balcão. no andar superior, projetamos uma boate e um bar, com controle lumínico e tratamento acústico adequados, tirando proveito da geometria do telhado em duas águas. ao fundo do lote está instalada uma torre infraestrutural na qual estão concentrados os equipamentos necessários ao bom funcionamento dos espaços.
endereço rua boracéia, 160, barra funda , são paulo
fase executado
início do projeto 2023
fim da construção 2024
projeto de arquitetura gru.a (pedro varella, caio calafate, ingrid colares e igor machado)
obra SHMV engenharia
ar condicionado e instalações murilo jarreta
acústica lygia niemeyer
paisagismo rulian nociti e leandro fontana
iluminação anna turra
fotografias rafael salim















