projeto pra reforma e modificação de residência
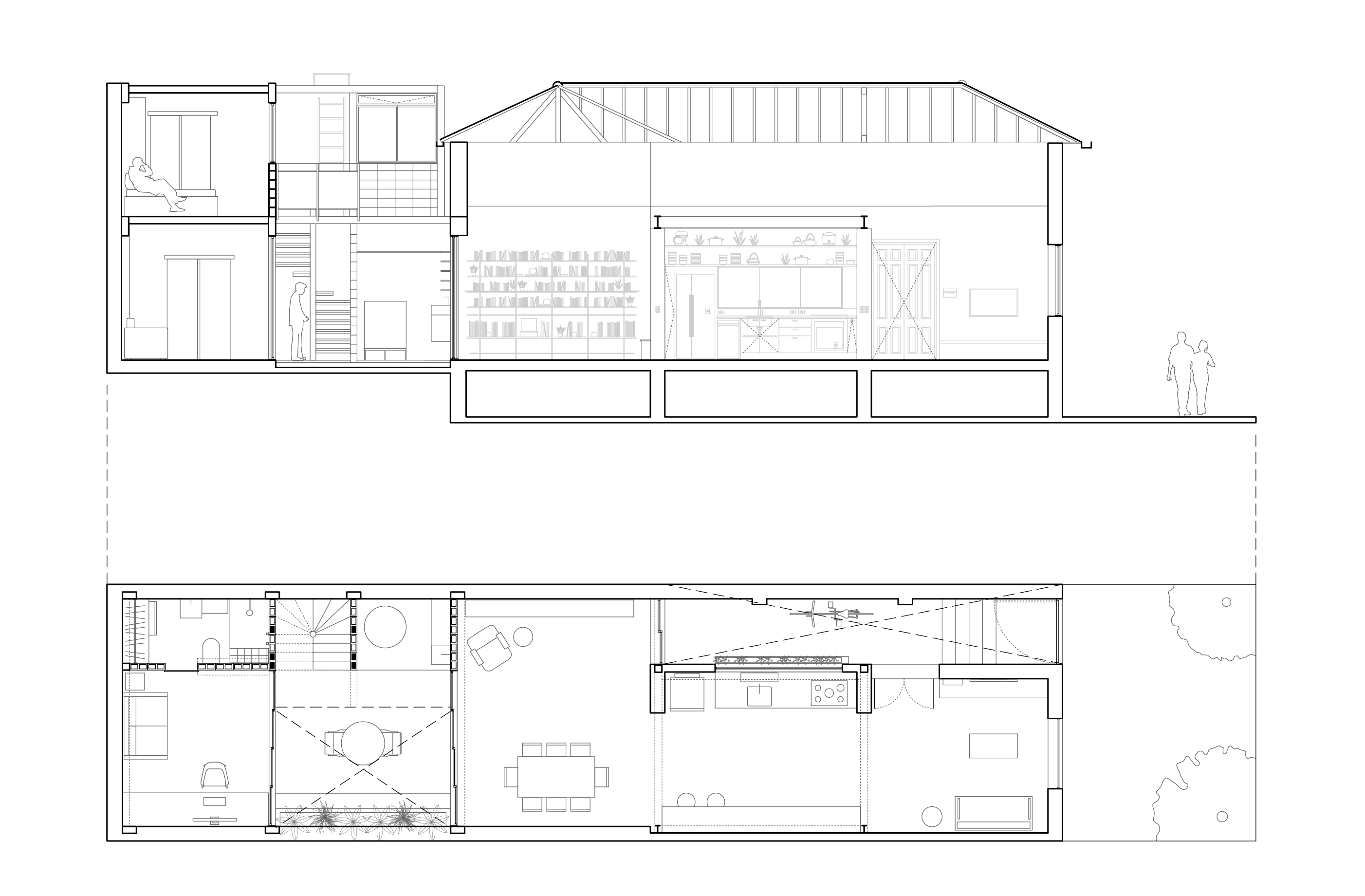
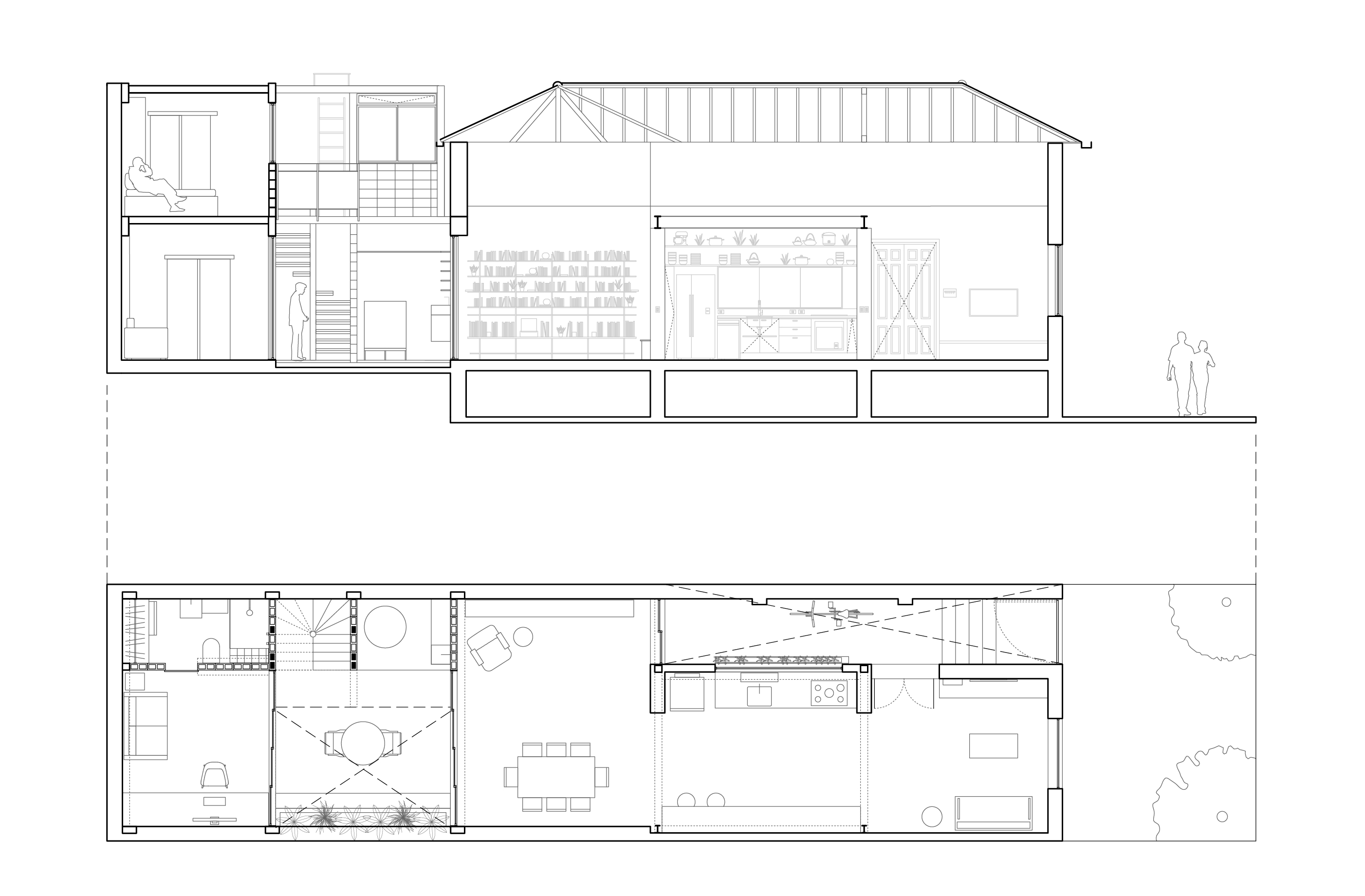
este projeto trata-se da adequação para fins residenciais de um lote urbano estreito e profundo (5mx20m), que combinou a reforma de uma casa pré-existente e o desenho de uma nova construção ao fundo.
nos primeiros 12 metros de extensão do lote, o projeto da reforma tomou partido das qualidades pré-existente identificadas. foi preservado o acesso à casa por um pátio lateral arejado e luminoso. as paredes em alvenaria estrutural foram reveladas. e o pé-direito generoso foi melhor aproveitado com a demolição das antigas compartimentações internas, passando a abrigar em um espaço único e integrado as áreas de convívio mais públicas da casa: sala de estar, cozinha e jantar, nesta ordem.
no trecho posterior, a nova construção em bloco de concreto abrigou em dois andares as áreas íntimas do programa. para a transição entre a pré-existência e o novo, foi redesenhada uma nova proporção de vazio, quadrada, que conformou um pátio descoberto central e articulador das circulações, permitindo integração visual em toda a extensão longitudinal do terreno e proporcionando luminosidade para todos os ambientes da casa.
endereço barra funda, são paulo
fase executado
início do projeto 2021
área construída 150m2
projeto de arquitetura caio calafate, pedro varella, Ingrid colares
colaboração linha arquitetura
construção manuel
estrutura alexandre pinto
fotografias rafael salim









