projeto para unidade mínima de habitação
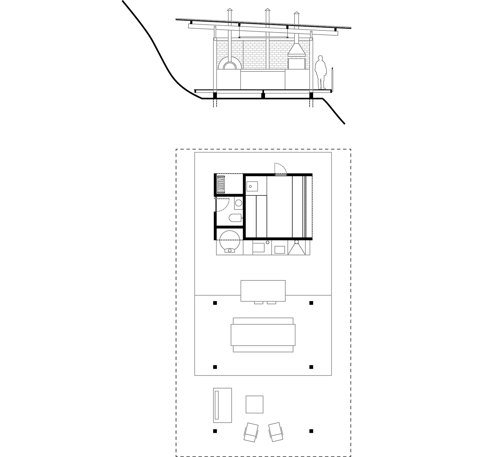
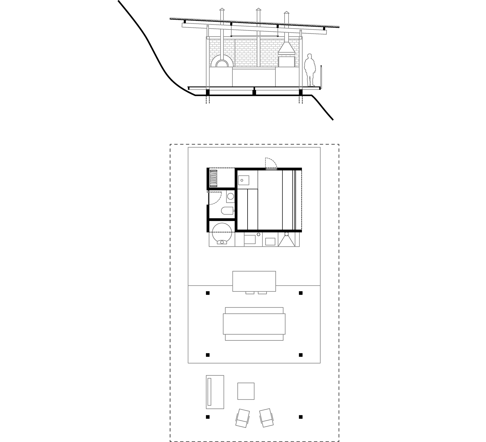
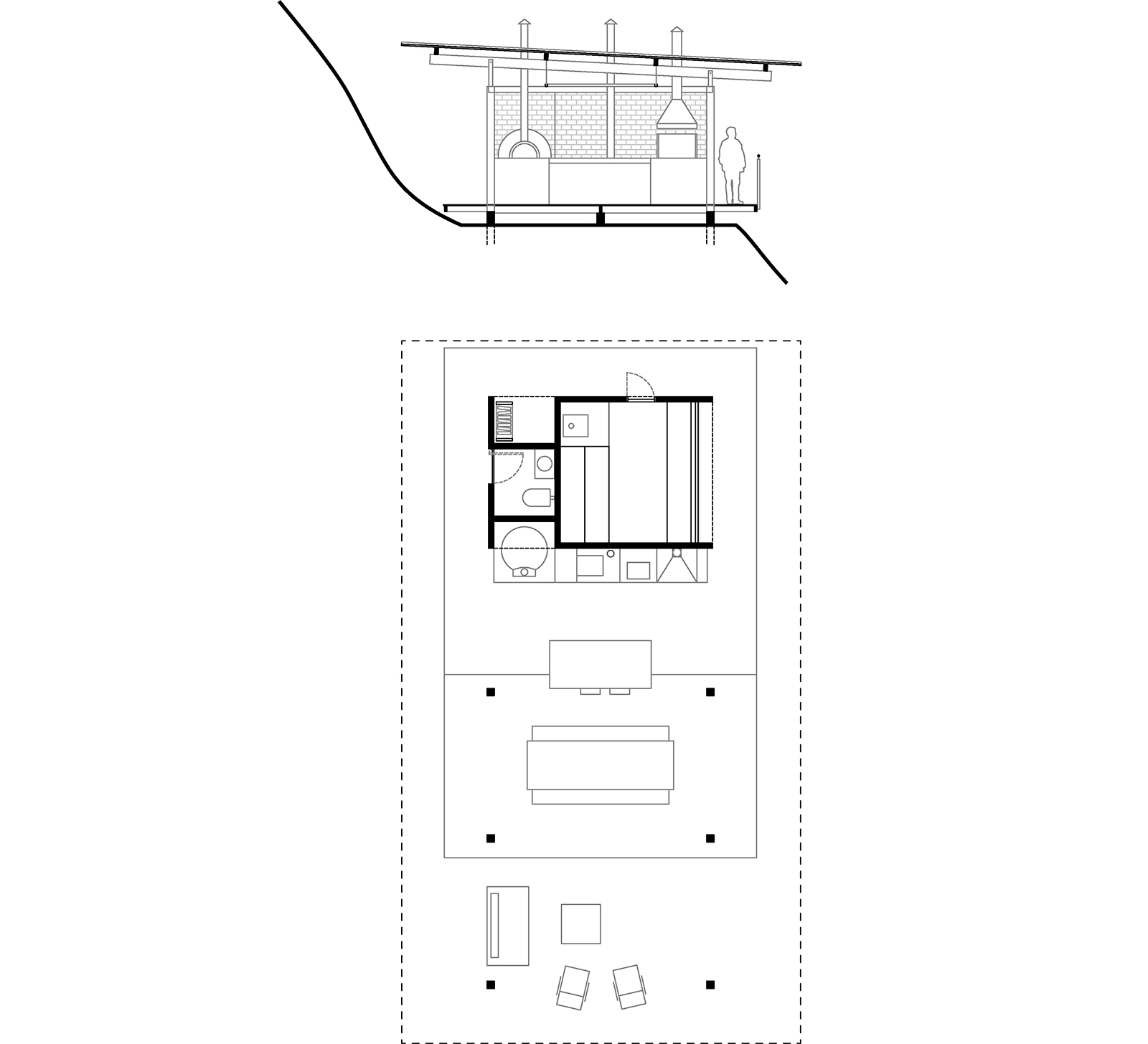
o projeto para o pavilhão anexo a uma residência no vale das videiras, rio de janeiro, parte da premissa de disponibilizar um espaço aberto e, ao mesmo tempo, protegido do forte sol e chuva que incidem sobre a região. localizada num platô pré-existente, a edificação foi pensada em função de sua relação com a casa situada no terreno, ativando o espaço intermediário entre as duas edificações.
o grande plano de cobertura se inclina suavemente em direção ao vale, trazendo para o espaço interior a presença da encosta que se ergue paralelamente à nova construção. abaixo da grande cobertura foram projetados uma cozinha, associada a um espaço para refeições, uma sauna e um espaço de 30m² de área coberta em que o solo vegetal se manteve intacto.
a associação de diferentes sistemas estruturais se dá de maneira a explorar as características de cada um deles: fundações em concreto moldado in-loco, pilares e vigas em madeira maciça, muros em alvenaria estrutural e lajotas em concreto pré-fabricados e ligações em aço.
endereço vale das videiras, araras, rio de janeiro
fase executado
início do projeto 03/2016
fim da construção 2016
área construída 150m²
projeto de arquitetura
pedro varella, caio calafate, sergio garcia-gasco e andré cavendish
projeto de estruturas rodrigo affonso
projeto de iluminação maneco quinderé
construtor aleandro souza da silva
serralheria robinho
fotografias federico cairoli e rafael salim
fotografias de obra gru.a










