projeto para teatro no centro do rio
O teatro pertencente ao conjunto edificado da antiga Real Sociedade Clube Ginástico Português — inaugurado em 1938 e atualmente Sesc Ginástico — é um equipamento cultural de reconhecida relevância histórica para o Rio de Janeiro.
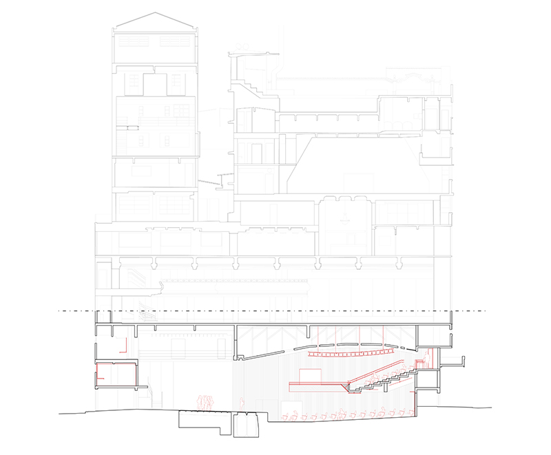
O projeto de intervenção fundamenta-se no reconhecimento e na preservação das qualidades arquitetônicas preexistentes, adotadas como condicionantes, a partir das quais são realizadas a reconfiguração do layout e a atualização de materiais, sistemas de iluminação e infraestrutura, visando à adequação às normas vigentes de acessibilidade, segurança e conforto.
Explorando a geometria do forro abobadado existente, o projeto propõe a suspensão de um grid técnico em contracurva, concebido como elemento estruturador do espaço. Mais do que um suporte de equipamentos, o grid atua como interface entre a arquitetura original e as novas demandas técnicas do teatro, integrando soluções de acústica e iluminação.
endereço av. graça aranha, 187, rio de janeiro
fase executado
início do projeto 2021
numero de lugares 390
projeto de arquitetura grua (pedro varella, caio calafate, igor machado, ingrid collares) e fábrica arquitetura (joão calafate)
conceito de iluminação diana joels em parceria com fernanda carvalho lighting Design
projeto de acústica echo arquitetura
(lygia niemeyer)
sonorização controle eletroacústica
(carlos pedruzzi, marcus watson, marcio reis)
fotografias rafael salim








