projeto de expografia para mostra no MAR
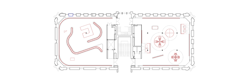
A exposição “Nossa vida Bantu” reúne obras de diferentes artistas com a intenção de expor o papel significativo que os povos de diferentes países africanos, denominados bantus, tiveram na formação cultural do Brasil. O projeto expográfico, desenvolvido em colaboração com Stella Tennenbaum, busca criar um ambiente imersivo para acomodar as obras de imensa expressividade através do uso da fibra de coco no piso e nas paredes, conformando certa continuidade entre os planos horizontais e verticais. Essas duas linhas são atravessadas por planos oblíquos que emergem do piso como uma dobra para conformar painéis e recintos.
endereço museu de arte do rio, rio de janeiro
data 2025
curadoria amanda bonan, marcelo campos, tiganá santana
consultores salloma salomão, abreu paxe, wanderson flor e margarida petter
expografia grua (pedro varella, caio calafate, gabriela casal) + Stella Tennenbaum
design gráfico Oga Mendonça
iluminação Anna Turra
equipe de produção Saturno Douglas e Nathália Simonetti
montagem Detagek cenografia
fotografias rafael salim







