projeto para a biofábrica piloto da let's fly
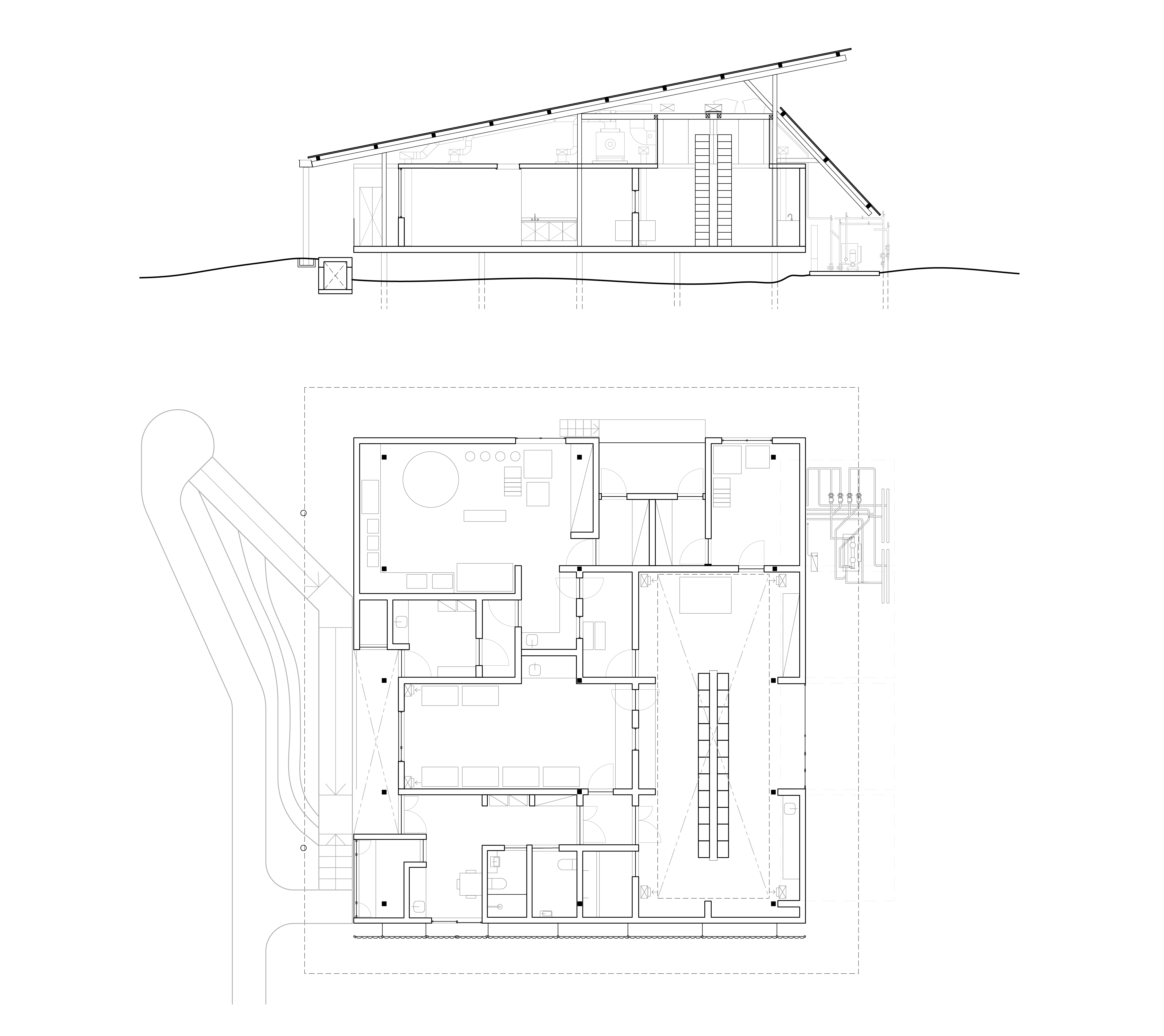
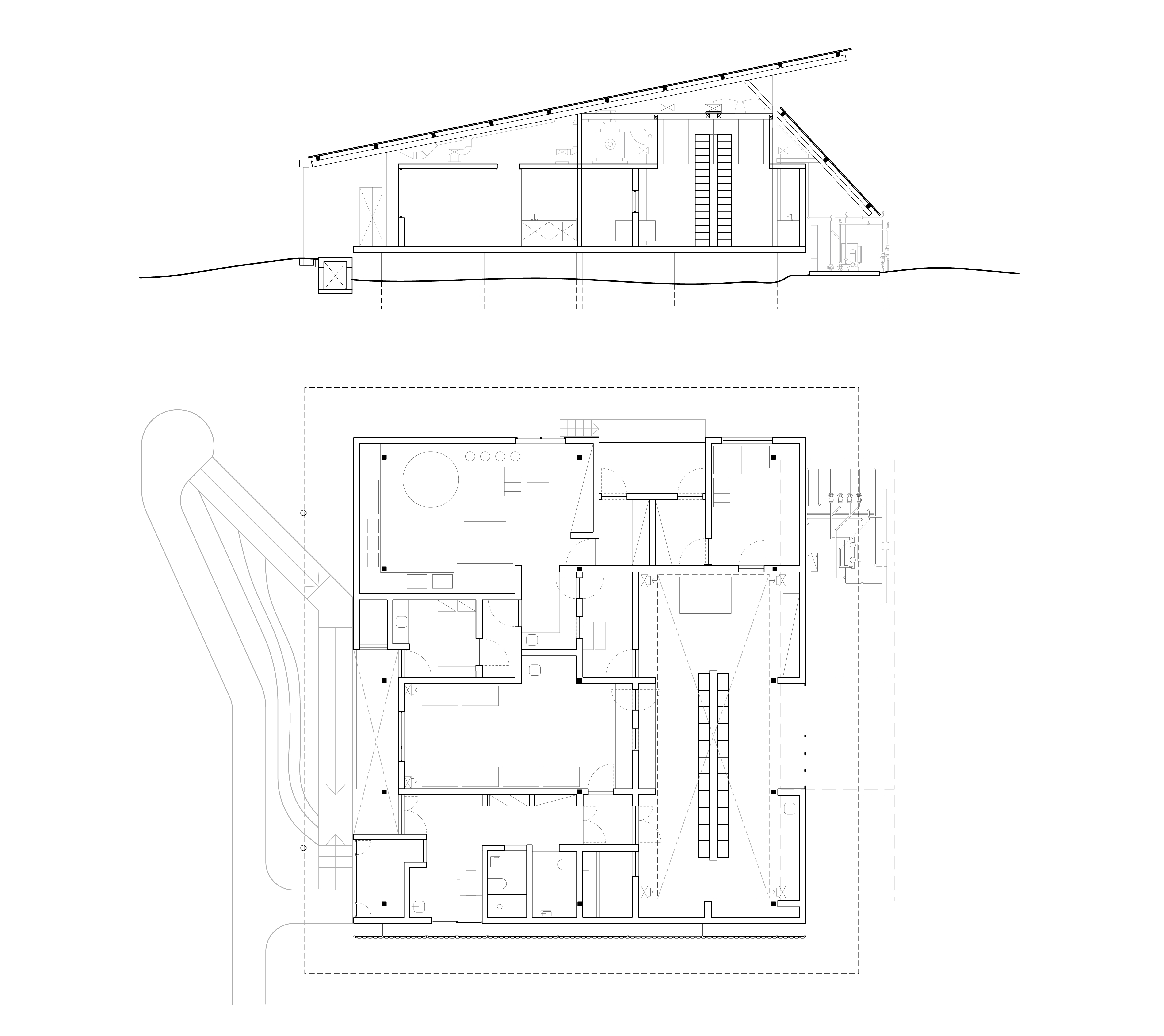
o projeto de arquitetura para a indústria pioneira na produção de proteína a base de moscas soldado negro (bsf), foi balizado pela estratégia de produção de dois sistemas construtivos autônomos. o primeiro define uma plataforma elevada de 400m2, onde está instalada uma grande cobertura apoiada em uma estrutura metálica organizada em módulos estruturais de 4x6m, formando uma única inclinação de 23° para norte, ideal para captação de energia solar. a elevação da cobertura permite ainda a criação de espaços de pé-direito duplo para instalação de estantes necessárias à produção da biofábrica. o segundo sistema é composto por fechamentos externos e internos em blocos de concreto e lajes pré-moldadas autoportantes, que permitem a adaptação às necessidades específicas de cada área produtiva ao longo do tempo.
projeto de arquitetura pedro varella, caio calafate, andré cavendish, ingrid colares, bárbara amorim.
localização cachoeira de macacu, rio de janeiro.
data 2022-23
área 400m2
projeto estrutural marcio pompei
projeto de instalações complementare (wagner santa cruz, greyce santa cruz)
projeto de ar condicionado edson tito
consultoria de iluminação diana joels (concepdual)
gestão de projetos uchino arquitetura (andré uchino e teresa faria)
fotografias federico cairoli






















