projeto vencedor de concurso nacional para o novo centro de preservação de bens culturais da fundação casa de rui de barbosa
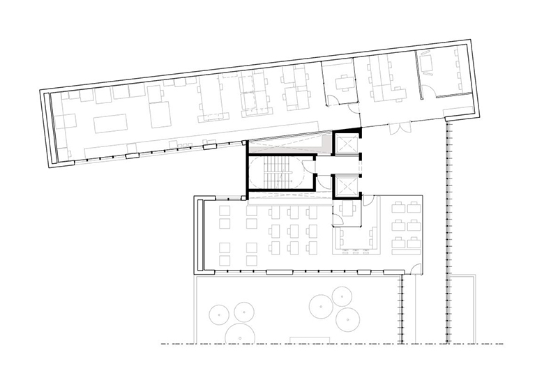
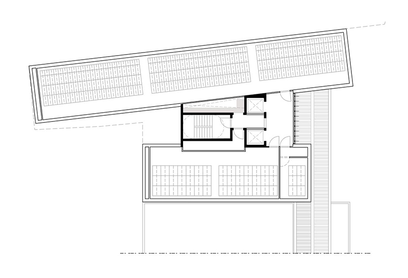
o projeto proposto apresenta duas premissas principais. a primeira diz respeito à articulação do novo edifício de arquivo com o espaço público adjacente. o projeto propõe uma nova relação do conjunto arquitetônico com a rua assunção, que dá acesso à ala norte da fundação. esta proposta se dá por meio do alargamento da calçada frontal ao sítio de intervenção, conformando uma pequena praça que dilui o limite público-privado. a segunda premissa diz respeito à racionalidade da implantação e do sistema construtivo. o edifício que abriga o acervo é organizado em duas lâminas longitudinais e lineares, articulada por um núcleo de circulação vertical localizado no eixo central do lote. a relação entre esses volumes resulta em uma eficiente distribuição de fluxos e infraestrutura, permitindo a implantação de um sistema construtivo modular e passível de pré-fabricação.
projeto de arquitetura
caio calafate, fabiana araújo, pedro varella e sergio garcia-gasco
fase projeto executivo
início do projeto 2013
fim do projeto 2016
endereço rua assunção, botafogo, rio de janeiro
área construída 2000m²
engenharias (desenvolvimento e projeto executivo) afaconsult
consultoria de gestão de riscos josé luís pedersoli
paisagismo rulian nociti
programação visual e sinalização bloco gráfico
orçamento nakamura & galvão







