renovação de antigo galpão com o pretexto de abrigar bar audiófilo
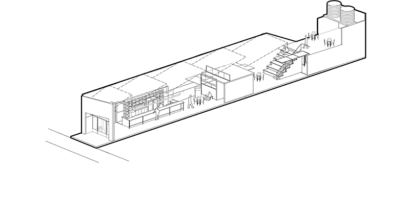
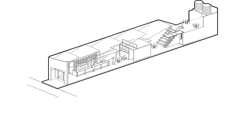
este trabalho trata-se de um projeto de intervenção em um construção antiga situada na vila buarque (são paulo) com o objetivo de implantar o caracol bar. o projeto procurou enfatizar as qualidades da edificação pré-existente combinando-as com novas estruturas projetadas especialmente para o local: bar, cozinha, áreas de serviço, arquibancada e terraço.
endereço rua jaguaribe 76, vila buarque, são paulo
fase executado
início do projeto 10/2017
fim da construção 2018
projeto de arquitetura gru.a (pedro varella, caio calafate, júlia carreiro, isadora tebaldi) e
juliana sicuro (fase preliminar)
obra foz engenhaira
consultoria estruturas rodrigo affonso
projeto de instalações CZN engenharia
serralheiria baltier
iluminação beto kaiser e corja
fotografias federico cairoli








